"Снегири"
Коттеджный посёлок
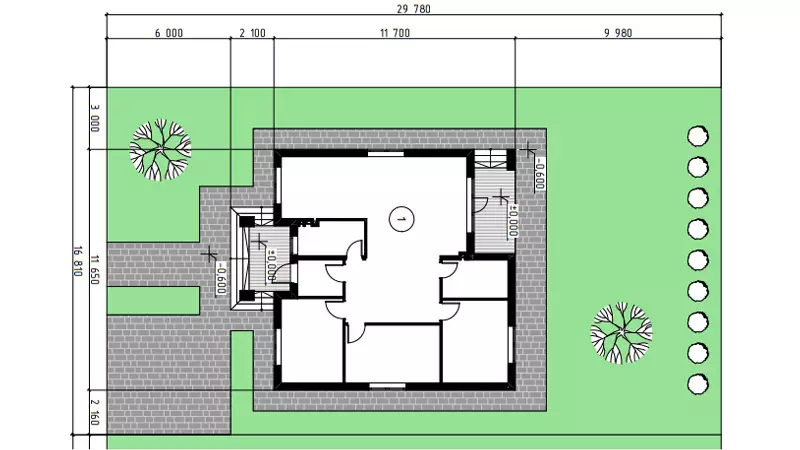
Откройте для себя живописный поселок Снегири, расположенный рядом с Новосемейкино, в окружении леса. Комфортные дома с предчистовой отделкой ждут вас в этом уютном поселке, где каждый дом оснащен водой, газом, электричеством, и канализацией. Наслаждайтесь комфортом и современными удобствами, которые гармонично вписаны в окружающую природу, а также легким доступом к городу всего в 20 минутах езды.








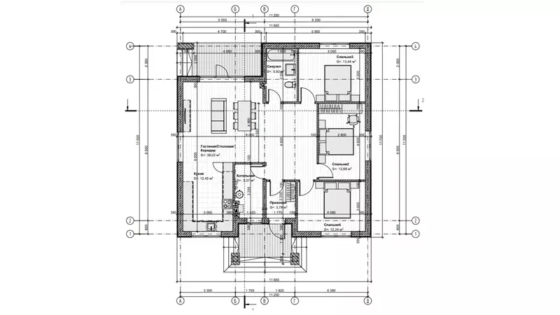
Индивидуальный жилой дом, общим размерами в плане 11,30 х 11,25 м.
| Вода | Газ | ||
| Электричество | Участок |
| Наименование помещения | площадь |
| Гостиная/Столовая/ Коридор | 38,02 |
| Котельная | 5,07 |
| Кухня | 12,45 |
| Прихожая | 3,78 |
| Санузел | 5,92 |
| Обработка угла | 8 шт |
| Спальня 1 | 12,88 |
| Спальня 2 | 13,44 |
| Спальня 3 | 12,34 |
Конструктивные решения:
1. Фундамент: см. раздел КР;
2. Внутренние несущие стены:
- кирпич красный полнотелый, на растворе М150;
- газобетонный блок (200 мм) на клеевом растворе;
3. Наружные cтены:
- газобетонный блок 300 мм на клеевом растворе; Утеплитель 50 мм;
4. Перегородки:
- газобетонный блок (перегородочный) на клеевом растворе;
5. Перемычки армированные;
6. Перекрытие - полы по грунту;
7. Окна - ПВХ;
8. Двери - внутренние - деревянные, наружные металличские;
9. Кровля - плоская;
10. Отделка - декоративная штукатурка;
11. Наружный водосток;









Индивидуальный жилой дом, общим размерами в плане 11,30 х 11,25 м.
| Вода | Газ | ||
| Электричество | Участок |
| Наименование помещения | площадь |
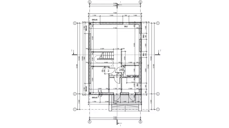
| 1-й этаж: | |
| Гост. санузел | 3,76 |
| Гостиная/Столовая/ Коридор/Лестница | 40,76 |
| Котельная | 5,61 |
| Кухня | 5,09 |
| Прихожая | 3,76 |
| Спальня 1 | 9,91 |
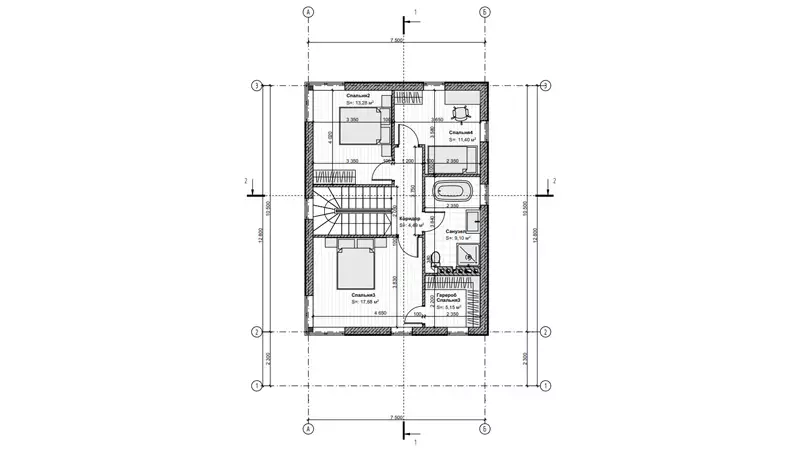
| 2й этаж: | |
| Гардероб, спальня 3 | 5,15 |
| Коридор | 4,49 |
| Санузел | 9,10 |
| Спальня 2 | 13,28 |
| Спальня 3 | 17, 68 |
| Спальня 4 | 11,40 |





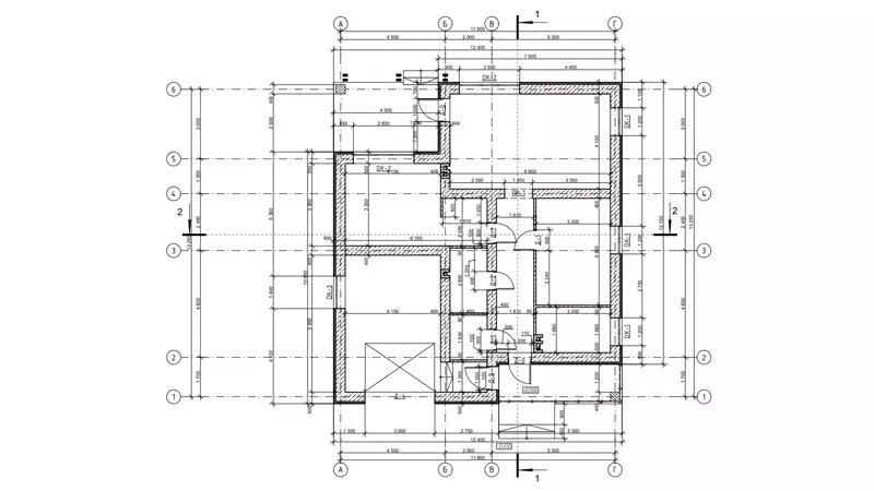
Индивидуальный жилой дом, общим размерами в плане 14,8 х 9,6 м.
| Вода | Газ | ||
| Электричество | Участок |
| Наименование помещения | площадь |
| Прихожая | 6,21 |
| Котельная | 6,86 |
| Коридор | 7,91 |
| Детская | 13,40 |
| Детская | 13,32 |
| Спальная | 16,10 |
| Санузел | 5,18 |
| Кухня | 6,41 |
| Гостиная | 36,78 |
| Ванная | 6,09 |









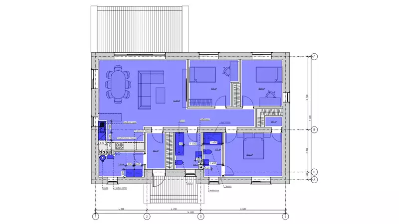
Индивидуальный жилой дом, общим размерами в плане 10,4 х 41,95 м
| Вода | Газ | ||
| Электричество | Участок |
| Наименование помещения | площадь |
| 1й этаж | |
| Тамбур | 8,16 |
| Спальная 1 | 18,58 |
| Коридор | 10,71 |
| Санузел | 4,48 |
| Кабинет | 14,72 |
| Гараж | 26,79 |
| Котельная | 6,04 |
| Гардеробная | 3,01 |
| Кухня, гостиная | 28,29 |
Конструктивные решения:
1 Фундамент:
Внутренние несущие стены:
- кирпич красный полнотелый, на растворе М150;
- керамзитобетонный блок 190х390х188;
Наружные Стены:
- утеплитель; керамзитобетонный блок 190х390х188
Перегородки:
- 90 мм, керамзитобетонный блок 390х90х188;
5. Перемычки армированные;
6. Перекрытие - пустотные плиты;
7. Окна - ПВХ;
8. Двери - внутренние - деревянные, наружные металличские;
9. Кровля - скатная;
10. Отделка - декоративная штукатурка;
11. Организовать наружний водосток;
Расположенный всего в 20 минутах от Самары, коттеджный посёлок "Снегири" предлагает новый уровень комфорта и спокойствия.
Вы можете выбрать любой проект дома из широкого ассортимента, который соответствует вашим потребностям и желаниям. У нас есть дом для каждого вкуса и бюджета!
Все коммуникации в коттеджном посёлке Снегири уже подключены, что обеспечивает удобства современной жизни.
Всё готово для вашей новой жизни! Заезжайте в коттеджный посёлок Снегири сегодня и начните жить своей мечтой! Мы рады видеть вас в нашем сообществе.